E-mail

RD 5+1 se sklepy, terasou a velkou zahradou

Máme pro vás nabídku Rodinného domu (205 m2) nabízející nejen krásné bydlení, ale i nízké náklady na provoz.
Dům v posledních letech procházel postupnou rekonstrukcí, např. byla udělána nová střecha, zateplení skoro celého domu, dřevěné stropy/podlahy, kompletně rozvody sítí, okna/dveře.

prodáno RD 5+1 se sklepy, terasou a velkou zahradou

Tato nemovitost už není bohužel v nabídce

Obytná plocha

205 m2

Umístění

klidná část obce

Konstrukce budovy

smíšená

Plocha pozemku

3931 m2

Počet podlaží

2

Máme pro vás nabídku Rodinného domu (205 m2) nabízející nejen krásné bydlení, ale i nízké náklady na provoz.
Dům v posledních letech procházel postupnou rekonstrukcí, např. byla udělána nová střecha, zateplení skoro celého domu, dřevěné stropy/podlahy, kompletně rozvody sítí, okna/dveře. Bylo nově instalováno tiché tepelné čerpadlo, které v kombinaci s termickými solárními panely a krbovými kamny s výměníkem zajišťují topení celého domu a ohřev teplé vody, zásadně šetří náklady na energie. Nesmíme také zapomenout na novou kuchyň, koupelnu a WC v přízemí.

Na domě jsou některé menší úpravy, o kterých rozhodne nový majitel dle svého vkusu, jako je dokončení WC a koupelny v 1. patře, barva domu a případné zateplení 15 m2 u terasy domu, pokud se nerozhodne pro variantu zimní…číst více  

Máme pro vás nabídku Rodinného domu (205 m2) nabízející nejen krásné bydlení, ale i nízké náklady na provoz.
Dům v posledních letech procházel postupnou rekonstrukcí, např. byla udělána nová střecha, zateplení skoro celého domu, dřevěné stropy/podlahy, kompletně rozvody sítí, okna/dveře. Bylo nově instalováno tiché tepelné čerpadlo, které v kombinaci s termickými solárními panely a krbovými kamny s výměníkem zajišťují topení celého domu a ohřev teplé vody, zásadně šetří náklady na energie. Nesmíme také zapomenout na novou kuchyň, koupelnu a WC v přízemí.

Na domě jsou některé menší úpravy, o kterých rozhodne nový majitel dle svého vkusu, jako je dokončení WC a koupelny v 1. patře, barva domu a případné zateplení 15 m2 u terasy domu, pokud se nerozhodne pro variantu zimní zahrady, kterou zamýšleli aktuální vlastníci. To jsou však náklady v řádek několika desítek tisíců. Zdi RD v úrovni sklepa a vinotéky není třeba zateplovat. To už obstará síla kamenných zdí.
Lokalita nabízí prostředí klidu maloměsta s plnou občanskou vybaveností, blízkostí přírody, a přitom chcete být za chvilku v Praze? Zastavte se a prohlédněte si informace o rodinném domě (RD) v Kostelci nad Černými lesy, který pro vás máme k dispozici v naší nabídce = Rodinný dům 5+1 se sklepy a terasou (celkem 205 m2) a pozemky (3931 m2)
Dům je na první pohled z ulice menší, ale nenechte se zmást. Je to jen zdání. RD s celkovou užitnou plochou (205 m2), která umožňuje využití coby dvougeneračního RD disponuje:
– Přízemí: kuchyň, obývací pokoj, ložnice, koupelna, WC (obložení, vana/sprchový kout) a chodby s technickým koutem, menší terasa s výhledem na zámek a zahradu a větší terasa s altánem před rekonstrukcí vhodná k pořádání akcí a grilování.
– Podkroví: 1x pokoj s šatnou, 2x pokoj, hala s možností udělat kuchyň, WC a koupelna.
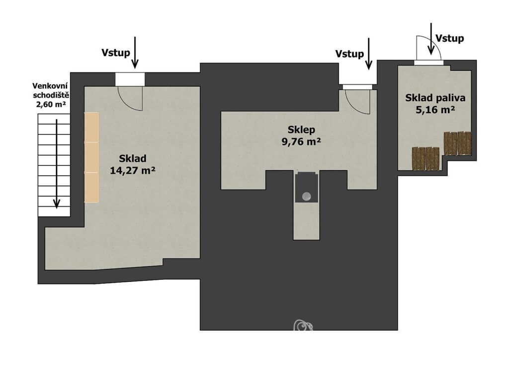
– Sklepy: 1x vinný sklípek, 1x dílna, 1x technický prostor. Vše samostatný vchod ze zahrady.

Hlavním prvkem RD je všudypřítomné dřevo, které prostory zútulňuje a opticky ohřívá.
Velká svažitá zahrada/pozemky s potůčkem sousedí se zámeckými pozemky v podzámčí a nabízí soukromí k relaxaci, ale i vybízí k realizaci svých představ o zahradách. Už v tuto chvíli nabízí mnoho rostlin od tradičních ovocných stromů a keřů až po ty netradiční jako nashi, kiwi a fíky. Spodní část zahrady tvoří potůček, habrový les, rododendrony a bambusy. Stále však nabízí neomezené množství reálných úprav pozemků.

Lokalita nabízí vysokou úroveň infrastruktury/občanskou vybavenost, kterou najdete přímo v Kostelci nad Černými lesy, pod jehož náměstím se RD nachází, i dobrou dostupnost do Prahy a Kutné Hory (pravidelné linky PID včetně noční + meziměstské/lokální BUS). Kromě obchodů, škol, školek, lékařů, volnočasových aktivit pro vás i vaše děti nesmíme zapomenout na zámek a známý pivovar.

Pro další informace a dojednání osobní prohlídky mě kontaktujte na 725 600 873

Zastavěná plocha 120 m2
Obytná plocha 205 m2
Plocha pozemku 3931 m2
Počet NP 2
Název obce Kostelec nad Černými lesy
Vlastníctví osobní
Konstrukce budovy smíšená
Zobrazit více fotografií