Obchodní prostory Praha – Běchovice 123m

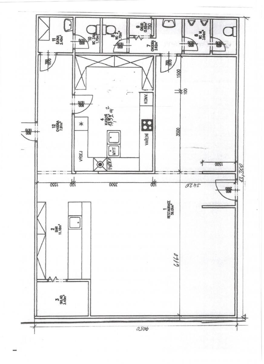
Nabízíme Vám k prodeji obchodní prostory v Praze 9 – Běchovicích, které jsou v tuto chvíli využívány jako restaurace s plným vybavení včetně kuchyně. Prostory mohou být dále využívány například jako Fast food nebo prodejna. Celková podlahová plocha je 100m2.

prodáno Obchodní prostory Praha – Běchovice 123m

Obytná plocha

100 m2

Plocha

150 m2

Umístění

centrum obce

Konstrukce budovy

montovaná

Plocha pozemku

123 m2

Počet podlaží

1

Nabízíme Vám k prodeji obchodní prostory v Praze 9 – Běchovicích, které jsou v tuto chvíli využívány jako restaurace s plným vybavení včetně kuchyně. Prostory mohou být dále využívány například jako Fast food nebo prodejna. Celková podlahová plocha je 100m2. K dispozici jsou také dvě terasy s možností prodeje uzenin přímo z malé udírny. U nemovitosti je parkoviště. V případě zájmu Vám poskytneme další informace a dohodneme termín prohlídky, kterou doporučuji.

Nabízíme Vám k prodeji obchodní prostory v Praze 9 – Běchovicích, které jsou v tuto chvíli využívány jako restaurace s plným vybavení včetně kuchyně. Prostory mohou být dále využívány například jako Fast food nebo prodejna. Celková podlahová plocha je 100m2. K dispozici jsou také dvě terasy s možností prodeje uzenin přímo z malé udírny. U nemovitosti je parkoviště. V případě zájmu Vám poskytneme další informace a dohodneme termín prohlídky, kterou doporučuji.

Celková plocha 150 m²
Zastavěná plocha 123 m²
Obytná plocha 100 m²
Plocha pozemku 123 m²
Počet NP 1
Název obce Praha, Běchovice
Konstrukce budovy Montovaná
Zobrazit více fotografií

Pojďme se na to spolu podívat

radim-fichtner-kontakt-v2

Znáte mě také jako